Použitá sanitární buňka KOMBI č.1658

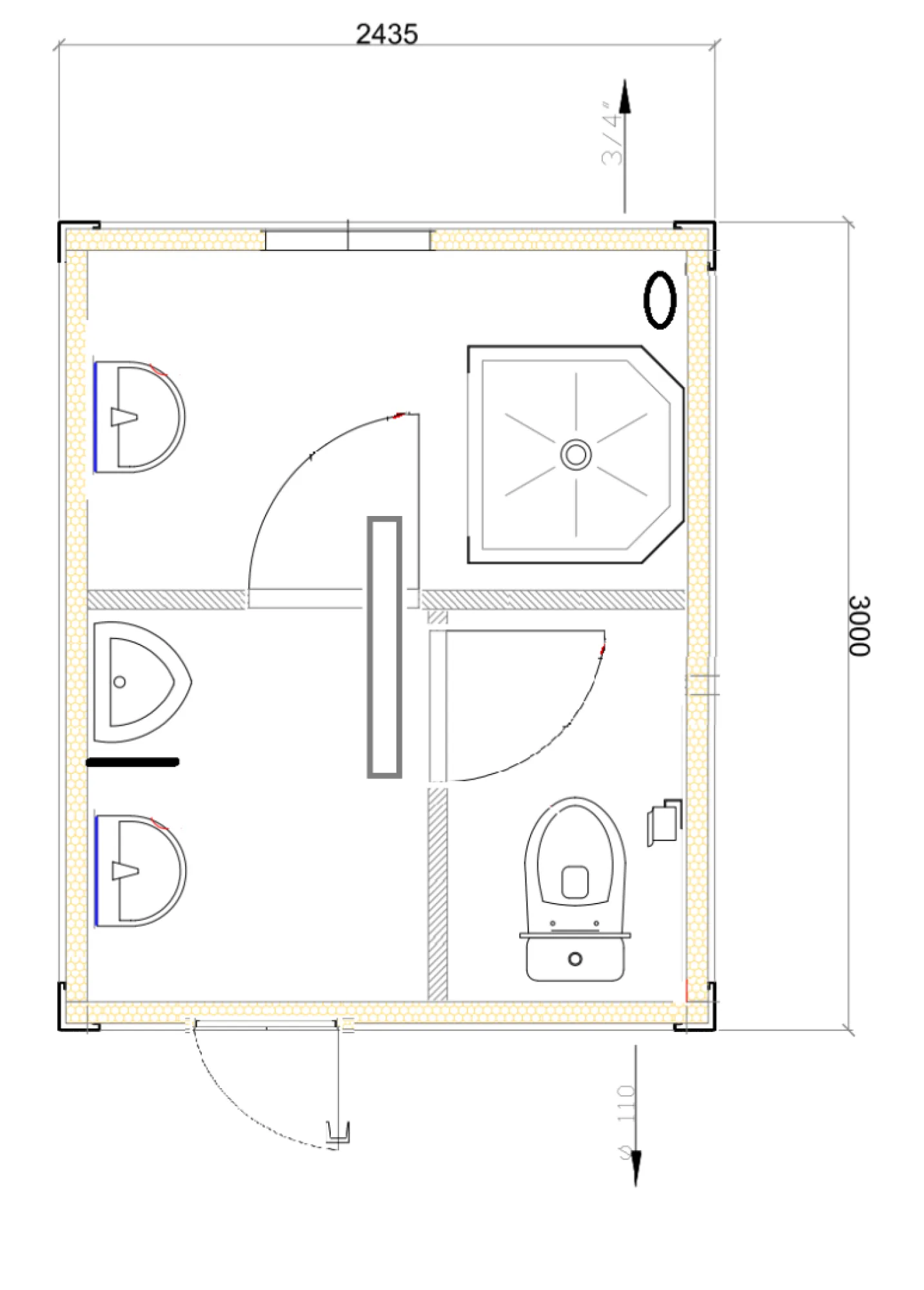
Nabízíme k prodeji použitou sanitární buňku o rozměru 3x2,5 m.

Vybavení:  1x venkovní dveře, 1x okno otevíravě-sklopné, 1x toaletní kabina s vnitřními dveřmi a keramickým WC, 1x pisoár, 1x sprchovací kabina s vnitřními dveřmi a sprchovým boxem, 2x keramické umyvadlo, 1x průtokový ohřívač vody

Byla provedena tlaková zkouška.

Elektroinstalace dle ČSN včetně revize. 

V případě zájmu můžeme buňku i zrepasovat. V případě požadavku na opravu nás kontaktujte.

Kontaktujte nás na info@ab-cont.cz, nebo tel. č. 733 111 000.

Tento produkt je vyprodaný. Můžete si vybrat jiný z této kategorie. Případně pokud budete chtít, můžeme se pokusit najít pro vás obdobný produkt. Kontaktujte nás na tel. čísle 733 111 000 nebo 731 512 447, emailu info@ab-cont.cz nebo formulářem přes tlačítko “Poptat”.
Načítám